Industrieweg 6

5324 JX Ammerzoden
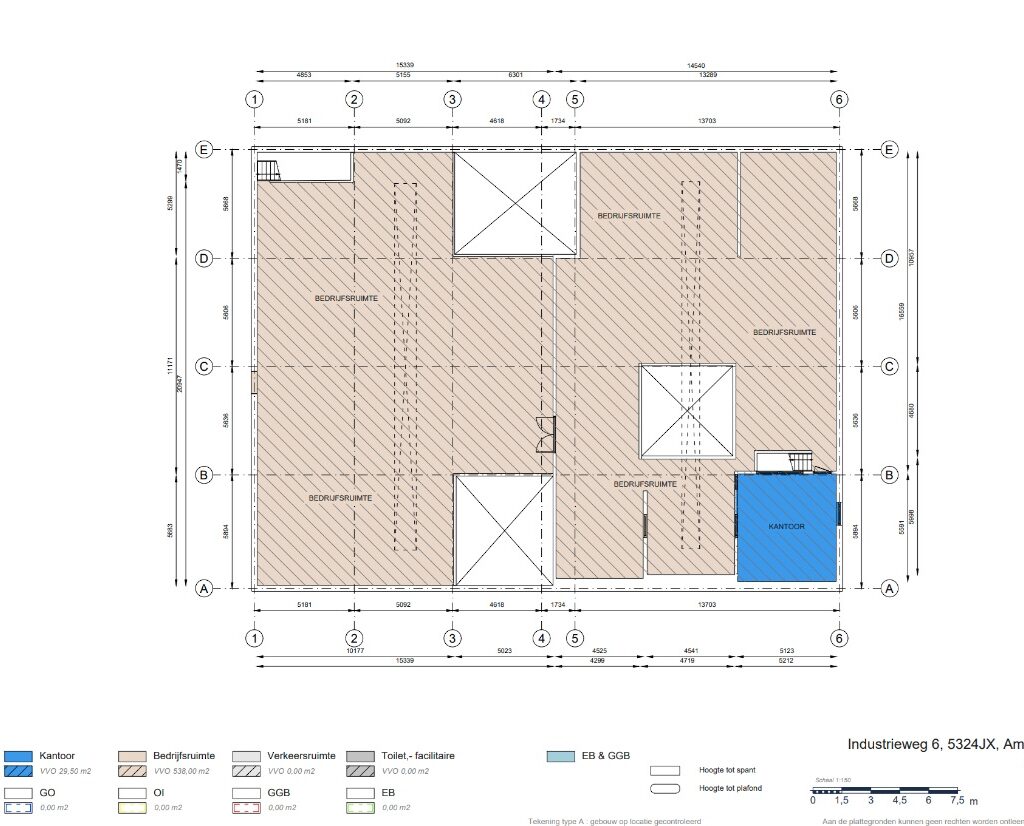
Bedrijfsruimte | circa 1.129 ㎡
Kantoorruimte | circa 114 ㎡

€ 875.000,00 k.k.

Omschrijving

TE KOOP
Circa 591 m² bedrijfsruimte
Circa 114 m² kantoorruimte
Circa 538 m² entresol
Turnkey oplevering

Een bedrijfsobject dat de perfecte balans biedt tussen ruimte, functionaliteit en modern comfort. Welkom aan de Industrieweg 6 te Ammerzoden, gelegen op bedrijventerrein Uilecoten te Ammerzoden.

Dit indrukwekkende pand omvat een ruime bedrijfsruimte inclusief buitenterreinen van circa 1.340 m² totaaloppervlak, eigentijdse kantoorruimtes met doorgroeimogelijkheden op strategische locatie in centraal Nederland gelegen.

Bedrijfsruimte
Het totale oppervlakte van de bedrijfsruimte bestaat uit circa 1.129 m² waarvan circa 591 m² bedrijfsruimte gelegen is op de begane grond en circa 538 m² gelegen op de entresol.

Kenmerken bedrijfsruimte
- Betonvloer
- 2 Elektrisch bedienbare overheaddeuren
- Verlichting middels LED-verlichting
- Krachtstroom
- In goed onderhouden staat
- Alarm en camera aanwezig
- Dubbel glas
- Eventueel met kantoor inventaris over te nemen
- Airco
- Centrale verwarming
- Toilet

Kantoorruimte
De kantoorruimte heeft een oppervlakte van circa 114 m² waarvan circa 84,5 m² gelegen op de begane grond en circa 29,5 m² gelegen op de verdieping.

Kenmerken kantoorruimte
- Gedeeltelijk PVC-vloer, gedeeltelijk marmoleum
- Entree
- Verlichting deels middels LED-verlichting en deels middels spots
- Airco
- Lichtstraten

Bestemming
Het bedrijfsgebouw is volgens opgave van de gemeente Maasdriel opgenomen in het bestemmingsplan ‘Ammerzoden'. Dit werd vastgesteld bij Raadsbesluit d.d. 1 mei 2012.
 
Het perceel heeft volgens dit bestemmingsplan de enkelbestemming ‘Bedrijf’. 
 
Maximum bebouwingspercentage terrein (%): 60
Maximum bouwhoogte (m): 10

Parkeren
Het buitenterrein bestaat uit circa 1.340 m². Op eigen terrein is voldoende parkeergelegenheid aanwezig, daarnaast kan er ook in de directe omgeving van het object worden geparkeerd.

Locatie
Het object is gelegen op bedrijventerrein van Ammerzoden, nabij het centrum van ’s-Hertogenbosch en Zaltbommel.

Ammerzoden is dé verkeersader en de directe ligging aan deze weg zorgt dan ook voor veel exposure. Door een snelle aansluiting aan de oprit van de A2, op enkele minuten afstand, kan de bereikbaarheid met de auto als uitstekend worden beschouwd.

De bereikbaarheid per openbaar vervoer is, met diverse bushaltes in de directe omgeving, eveneens uitstekend. Het Centraal Station Zaltbommel is op circa 8 km afstand gelegen.

+ Lees volledige omschrijving
Kenmerken
TypeTe koop
Oppervlakte1.129
Gebouwdetails
Bouwjaar1995
ParkeerfaciliteitenHet buitenterrein bestaat uit circa 1.340 m². op eigen terrein is voldoende parkeergelegenheid aanwezig, daarnaast kan er ook in de directe omgeving van het object worden geparkeerd.
Bereikbaarheid snelweg afritOp 5000 m of meer
Bereikbaarheid NS stationOp 5000 m of meer
Bereikbaarheid bushalteOp 500 m tot 1000 m
Financieel
TransactiestatusBeschikbaar
Type aanvaardingIn overleg