Stationsstraat 28 a

5281 GD Boxtel
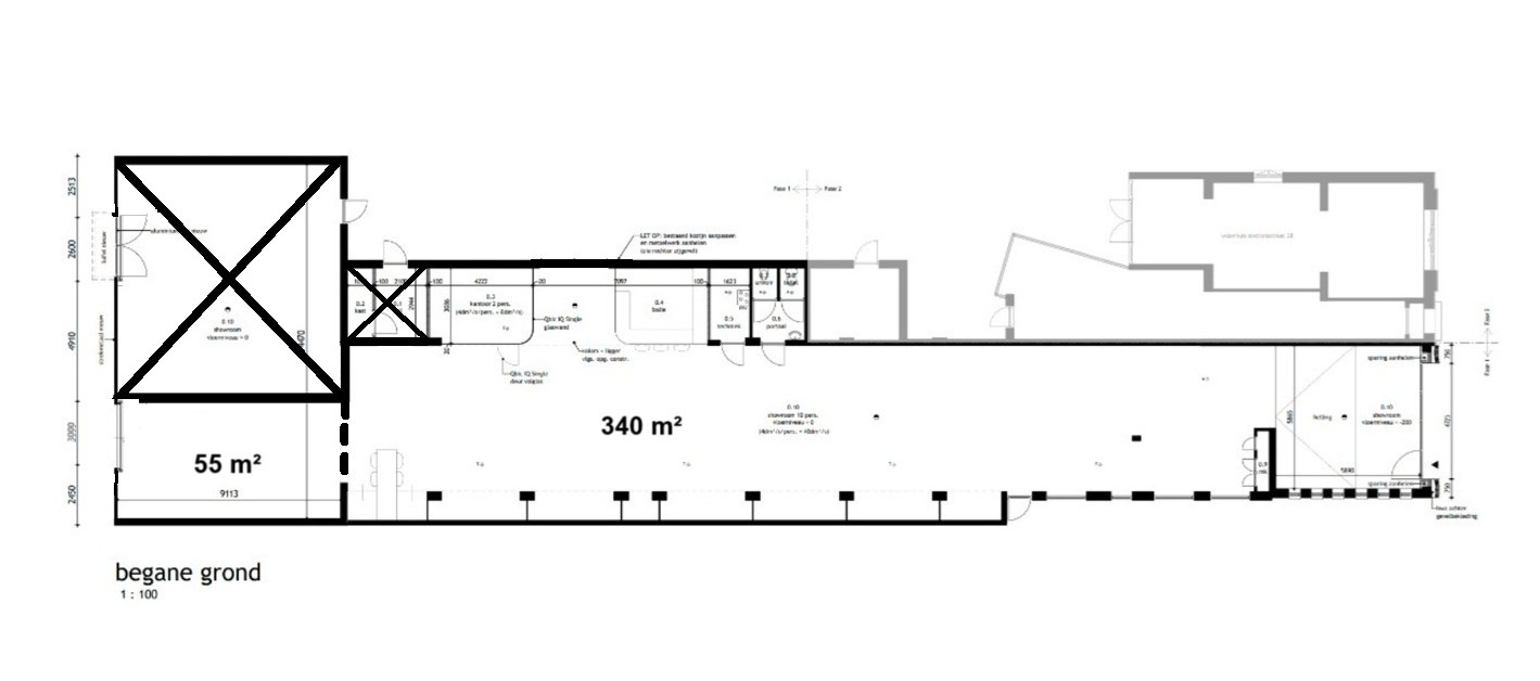
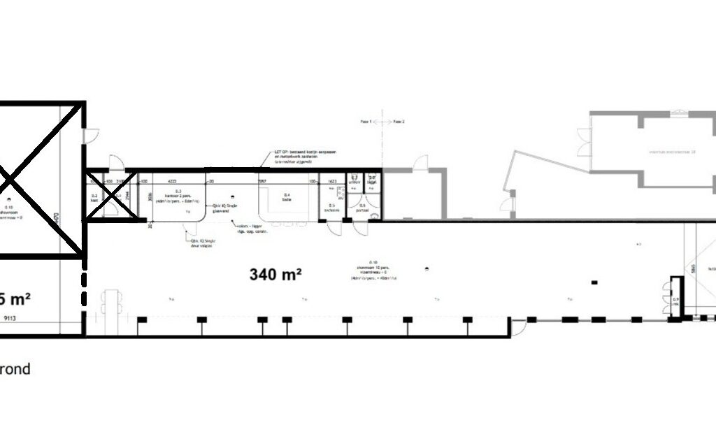
Winkelruimte | circa 340 ㎡

Verhuurd

Omschrijving

TE HUUR
Circa 340 m² multifunctionele bedrijfsruimte op toplocatie
(met uitbreidingsmogelijkheden)
Turn-key opleverniveau!

Bent u op zoek naar een hoogwaardige bedrijfsruimte op een uitstekende locatie? Deze compleet vernieuwde, duurzame bedrijfsruimte van circa 340 m² (uitbreidbaar tot 395 m²) biedt veelzijdige mogelijkheden en een turnkey oplevering.

Gelegen aan de karakteristieke Stationsstraat, direct in het verlengde van de winkelstraat in het centrum van Boxtel, is dit de perfecte locatie voor uw onderneming.

Ligging en omgeving
Dit pand bevindt zich in het verlengde van het winkelgebied van Boxtel, een bruisend centrum met gevestigde namen zoals Hema, Albert Heijn, Kruidvat, Scapino en Shoeby. Boxtel, een gemeente met ruim 33.000 inwoners, is gunstig gelegen tussen 's-Hertogenbosch en Eindhoven.

Kenmerken
- Duurzaamheid: Warmtepomp
- Klimaatbeheersing: Volledig voorzien van airconditioning en vloerverwarming
- Tegelvloer met vloerverwarming
- Fraaie lichtkoepels voor veel daglicht
- Moderne keuken/bar voorzien van alle inbouwapparatuur, inclusief Quooker (kokend en bruiswater)
- Stijlvolle kantoorindeling met glazen scheidingswanden
- Toiletgroep met toilet en urinoir
- Voorzien van alarmsysteem en camerabewaking

Extra ruimte: Optioneel een extra ruimte van circa 55 m² aan de achterzijde, met een hoogte van 4,5 meter, elektrisch bedienbare roldeur en toegankelijk voor bestel-/vrachtwagens

Multifunctioneel gebruik
Deze bedrijfsruimte is geschikt voor diverse toepassingen, zoals:
- Kantoorruimte: Bijvoorbeeld voor een accountants- of IT-kantoor
- Retail/showroom: Perfect voor een winkel met opslagruimte of een showroom
- Creatieve ruimtes: Denk aan een galerie of studio

Met een frontbreedte van 6 meter biedt de fraaie gevel een uitstekende zichtlocatie aan de doorgaande Stationsstraat. De ruimte is gelegen op de begane grond en is uitstekendbereikbaar, zowel met de auto als met het openbaar vervoer.

Huurprijs
€ 50.000,00 per jaar, te vermeerderen met btw (voor circa 340 m²) uitbreidbaar naar circa 395 m² voor € 55.000,00 per jaar, te vermeerderen met btw.

Servicekosten
Voor levering van elektra wordt maandelijks een verrekenbaar voorschot in rekening gebracht.

Parkeren
Voldoende openbare parkeergelegenheid in de omgeving en eigen parkeerplaatsen voor bezoekers.

Bestemming
Het bedrijfsgebouw is volgens opgave van de gemeente Boxtel opgenomen in het bestemmingsplan ‘Centrum Boxtel'. Dit werd vastgesteld bij Raadsbesluit d.d. 19 mei 2020.   Het perceel heeft volgens dit bestemmingsplan de bestemming ‘Centrum -2’.  Maximale bouwhoogte (m): 11

Locatie
De bereikbaarheid is goed te noemen. Boxtel is gelegen aan de op- en afritten van de rijksweg A2 (Amsterdam –
Maastricht).

Tevens is het object met het openbaar vervoer goed bereikbaar. Het NS-Station Boxtel is op korte afstand van het object gelegen. Station Boxtel heeft verbindingen richting Eindhoven, ’s-Hertogenbosch-Utrecht en Tilburg

 

+ Lees volledige omschrijving
Kenmerken
TypeTe huur
Oppervlakte340
Gebouwdetails
EnergieklasseA ++
ParkeerfaciliteitenIn de directe omgeving is openbare parkeergelegenheid beschikbaar. 
Bereikbaarheid snelweg afritOp 5000 m of meer
Bereikbaarheid NS stationOp 500 m tot 1000 m
Bereikbaarheid bushalteOp minder dan 500 m
Financieel
TransactiestatusIngetrokken
Type aanvaardingIn overleg
Stationsstraat 28 a Boxtel
Stationsstraat 28 a Boxtel