Kastanjelaan 14

5268 CA Helvoirt
Kantoorruimte | circa 705 ㎡

Verkocht

Omschrijving

VERKOCHT
Uniek object met een prachtige uitstraling!
Vrijstaande voormalige pastorie

Welkom bij deze unieke kans om eigenaar te worden van een stukje geschiedenis. Kastanjelaan 14 is een voormalige R.K. pastorie uit 1852, gelegen naast de neogotische H. Nicolaaskerk in het pittoreske Helvoirt. Dit rijksmonument combineert historische allure met authentieke details binnen met hedendaags comfort en biedt een uitzonderlijke werk-/ woonervaring in een groene en rustige omgeving.

Omstreeks 2014 is een grootschalige restauratie afgerond en is het monument verhuurd als kantoorruimte waarbij nog een gedeelte werd gebruikt als parochiecentrum.

Op steenworp afstand vind je gezellige cafés, een supermarkt, basisscholen en uitgestrekte natuurgebieden zoals de Loonse en Drunense Duinen. 

Kantoor-/woonobject
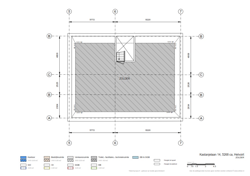
Deze voormalige pastorie heeft een oppervlakte van maar liefst 705 m² waarvan circa 33 m² kelderrruimte, circa 297 m² gelegen op de begane grond, circa 273 m² gelegen op de eerste verdieping en circa 102 m² zolderruimte.

Kenmerken
- Authentieke elementen
- Getoogde plafonds met sierlijsten
- Deels natuurstenen vloer, deels houten vloer en deels vloerbedekking
- Open haard
- Raamluiken
- Paneeldeuren
- Inbouwkasten
- Glas in lood ramen
- Verwarming middels radiatoren
- Split units
- Kelder aanwezig
- In 2011 geïsoleerd
- Toiletten
- Brandblusvoorzieningen

Terrein
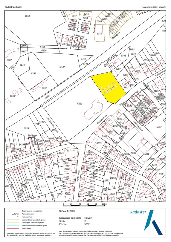
Het onderliggende perceel bestaat uit circa 4.000 m². De voormalige pastorie is gelegen in een parkachtige tuin, aangelegd in landschapsstijl. Er is voldoende parkeermogelijkheid. Aan de voorzijde van het gebouw bevindt zich een ovaal perk. De tuin biedt volop privacy en rust, ideaal voor ontspanning en recreatie.

Bestemming
Het bedrijfsgebouw is volgens opgave van de gemeente Vught opgenomen in het bestemmingsplan ‘Kom Helvoirt 2023'. Dit werd vastgesteld bij Raadsbesluit d.d. 4 juli 2024.

Het perceel heeft volgens dit bestemmingsplan de bestemming ‘Wonen’. 
 
Maximum aantal bouweenheden: 2
Maximum bouwhoogte (m): 12
Maximum goothoogte (m): 8

Locatie
Landelijk werken of wonen in Helvoirt, dat kan zeker in deze buurt. Kastanjelaan 14 is gelegen in het centrum van Helvoirt. Dit is een kindvriendelijke en rustige buurt met relatief veel gezinnen en veel voorzieningen in de buurt. 

Gesitueerd op loopafstand van het centrum van Helvoirt, op loopafstand van een supermarkt. Daarnaast zijn de dichtstbijzijnde uitvalswegen A65 en N65 in de nabije omgeving op 10 minuten rijden. 

Bushaltes op loopafstand zorgen voor een directe verbinding met omliggende steden zoals Den Bosch, Tilburg en Vught.

 

+ Lees volledige omschrijving
Kenmerken
TypeTe koop
Oppervlakte705
Gebouwdetails
Bouwjaar1852
ParkeerfaciliteitenHet totale perceel bestaat uit 16.537 m². de voormalige pastorie is gelegen in een parkachtige tuin, aangelegd in landschapsstijl. er is voldoende parkeermogelijkheid.
Bereikbaarheid snelweg afritOp 5000 m of meer
Bereikbaarheid NS stationOp 5000 m of meer
Bereikbaarheid bushalteOp minder dan 500 m
Financieel
TransactiestatusVerkocht
Type aanvaardingIn overleg
Kastanjelaan 14 Helvoirt
Kastanjelaan 14 Helvoirt
Kastanjelaan 14 Helvoirt
Kastanjelaan 14 Helvoirt
Kastanjelaan 14 Helvoirt