Amerikastraat 7

5232 BE ’s-Hertogenbosch
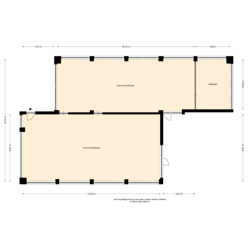
Kantoorruimte | circa 200 ㎡

€ 135,00 per ㎡ per jaar

Omschrijving

TE HUUR
Circa 200 m² kantoorruimte

Het bedrijfsobject is gelegen op bedrijventerrein De Herven aan de Amerikastraat 7-11 te 's-Hertogenbosch. De Herven is vanaf midden jaren 70 als bedrijventerrein ontwikkeld. Het is daarmee het op een na oudste bedrijventerrein van de stad ‘s-Hertogenbosch. 

Haar ligging langs de A2, het spoor en natuurgebied ‘de Heinis’ als ook de aanwezigheid van de recentelijk vernieuwde Woonboulevard maakt van De Herven een zichtbaar, bereikbaar en uniek bedrijventerrein. Daarbij zorgen de aanwezige kantoren, scholen, autoboulevard en woonboulevard voor een breed pallet aan bedrijven die de diversiteit van het terrein benadrukken. Met haar vele en diverse bedrijven is De Herven dan ook belangrijk voor de werkgelegenheid voor de stad en bepaalt zij voor een belangrijk deel het aanzicht en aanzien van ‘s-Hertogenbosch.

Kantoorruimte
Op de eerste verdieping is circa 200 m² kantoorruimte beschikbaar. Deze moderne kantoorruimte is in 2013 gerenoveerd en voorzien van een hoogwaardige afwerking. 

Kenmerken
- Centrale entree
- Systeemplafonds met verlichtingsarmaturen
- Systeemwanden met deels glaswanden
- Vloerbedekking in de kantoorruimte en gietvloeren in algemene ruimten
- Databekabeling
- Pantry op iedere verdieping
- Sanitaire voorzieningen op iedere bouwlaag
- Energielabel A++

Parkeren
Er is voldoende parkeergelegenheid aanwezig op het eigen afgesloten parkeerterrein.

Bestemming
Het perceel heeft volgens dit bestemmingsplan de bestemming ‘Bedrijventerrein’ met als functieaanduiding 'bedrijf van de categorie 3.1' specifieke vorm van detailhandel - abc.

Maximum bebouwingspercentage terrein (%): 60
Maximum bouwhoogte (m): 15

Locatie
Het gebouw, gebouwd in 1996, is gelegen op bedrijventerrein “De Herven” aan de Amerikastraat 7-11 te ‘s-Hertogenbosch. Het gebouw bevindt zich aan de A2 (Eindhoven – ‘s-Hertogenbosch – Utrecht – Amsterdam) op korte afstand van de op- en afritten van de snelweg.
De locatie is goed bereikbaar per auto, gezien de directe toegang tot de A2.
Daarnaast is het object ook goed bereikbaar met openbaar vervoer door een bushalte gelegen aan de Reitscheweg.

 

+ Lees volledige omschrijving
Kenmerken
TypeTe huur
Oppervlakte200
Gebouwdetails
Bouwjaar1986
EnergieklasseA ++
ParkeerfaciliteitenEr is voldoende parkeergelegenheid op eigen terrein aanwezig
Bereikbaarheid snelweg afritOp 1000 m tot 1500 m
Bereikbaarheid NS stationOp 3000 m tot 4000 m
Bereikbaarheid bushalteOp minder dan 500 m
Financieel
TransactiestatusBeschikbaar
Servicekosten€ 50,00 Per vierkante meters per jaar
Type aanvaardingIn overleg
Amerikastraat 7 ‘s-hertogenbosch
Amerikastraat 7 ‘s-hertogenbosch