Balkbrug-Oost 67

5236 PW ’s-Hertogenbosch
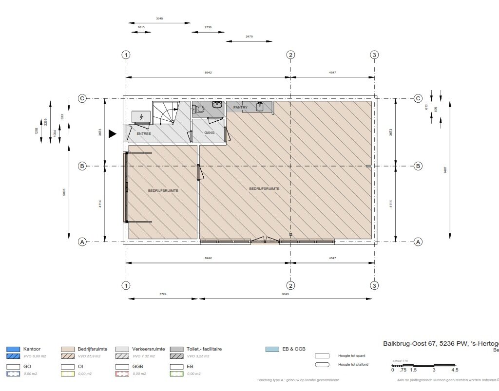
Bedrijfsruimte | circa 100 ㎡
Kantoorruimte | circa 100 ㎡

Verhuurd

Omschrijving

VERHUURD
Circa 100 m² bedrijfsruimte
Circa 100 m² kantoorruimte

Aan Balkburg-Oost op het bedrijventerrein Empel-Zuid te ‘s-Hertogenbosch zijn de bedrijfsunits gelegen, gebouwd in 2021, speciaal naar de wensen van het moderne midden- en kleinbedrijf.

De ruimte kent een flexibele indeling, heeft een moderne en eigentijdse uitstraling en is afgewerkt met onderhoudsvriendelijke gevelelementen en pui. Kortom een uitstekend visitekaartje voor uw bedrijf.

De op korte termijn beschikbare bedrijfsunit heeft oppervlakte van circa 200 m², waarvan circa 100 m² bedrijfsruimte gelegen op de begane grond en circa 100 m² kantoorruimte op de verdiepingsvloer. De unit heeft 2 eigen parkeerplaatsen en is voorzien van diverse voorzieningen.

Multifunctioneel, flexibel en representatief
Vooral voor ondernemers in het midden– en kleinbedrijf biedt de bedrijfsunit qua omvang en indeling uitstekende perspectieven. Het is een multifunctionele ruimte met een flexibele indeling en een moderne, eigentijdse uitstraling, die uitstekend dient als werkplaats, magazijn of atelier.

Kenmerken bedrijfsunit
- Afgewerkte begane grondvloer van beton met een maximale vloerbelasting van circa 1.000 kg/m²
  en 350 kg/m² op de verdieping
- Isolerende beglazing
- 60+ electra outlets
- 50+ bekabelde UTP outlets met patchkast
- Volledig afgewerkte toiletruimte met fonteintje
- Elektrische bedienbare overheaddeur
- Alarmsysteem
- Camerasysteem
- Meterkast met standaardvermogens: elektra en water
- Airco/verwarming middels converters, warmtewisselaar voor bedrijfsruimte -luchtverversing
- Zonnepanelen
- Verdiepingsvloer voorzien van vloerbedekking
- Raambekleding begane grond en verdieping
- Pantry op de begane grond en verdieping, met vaatwasser, koelkast en magnetron
- Toiletten op de begane grond en verdieping
- Poederblussers op de begane grond en verdieping
- Twee eigen parkeerplaatsen en voldoende parkeergelegenheid aan de openbare weg

Bestemming
Het bedrijfsgebouw is volgens opgave van de gemeente 's-Hertogenbosch opgenomen in het bestemmingsplan ‘Bedrijventerrein Empel 3e Fase'. Dit werd vastgesteld bij Raadsbesluit d.d. 10 juli 2012.
 
Het perceel heeft volgens dit bestemmingsplan de bestemming ‘Bedrijventerrein-1’ met als functieaanduiding 'bedrijf van de categorie 3.2'.
 
Maximum bebouwingspercentage terrein (%): 60

Ligging
Bedrijventerrein Empel-Zuid heeft een strategische ligging ten noordoosten van ’s-Hertogenbosch, tussen de kern Empel en het knooppunt van de rijkswegen A2/A59 in.
Het is een modern bedrijventerrein ten behoeve van kleine en middelgrote bedrijven in de lichtere milieuklasse (categorie 3.2). Bijvoorbeeld: lichte industrie, ambachtelijke bedrijvigheid. De oprit A2 bevindt zich op slechts 1,5 kilometer van de locatie.

 

+ Lees volledige omschrijving
Kenmerken
TypeTe huur
Oppervlakte100
Gebouwdetails
Bouwjaar2021
ParkeerfaciliteitenDe unit heeft 2 eigen parkeerplaatsen
Bereikbaarheid snelweg afritOp 1500 m tot 2000 m
Bereikbaarheid NS stationOp 5000 m of meer
Bereikbaarheid bushalteOp minder dan 500 m
Financieel
TransactiestatusVerhuurd
Servicekosten€ 60,00 Per jaar
Type aanvaardingIn overleg