Brede Haven 6

5211 TL ’s-Hertogenbosch
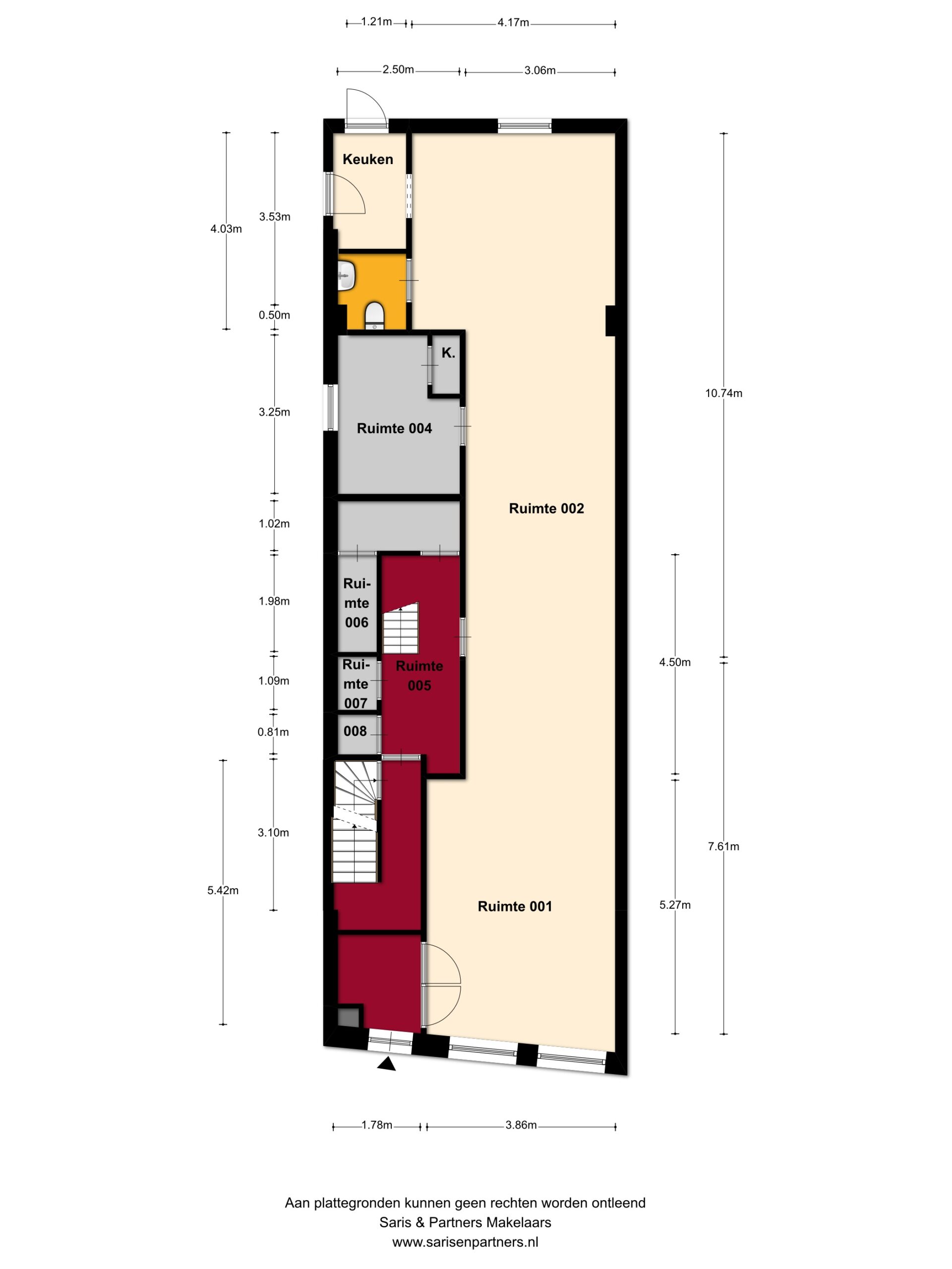
Kantoorruimte | circa 84 ㎡

Verhuurd

Omschrijving

VERHUURD
Circa 84 m² turn-key commerciële ruimte / kantoorruimte / winkelruimte
Op een schitterende locatie in hartje binnenstad!

Het object is gelegen op een mooie locatie aan de Binnendieze, in het centrum van 's-Hertogenbosch en te midden van diverse monumentale objecten. Van oudsher werden aan deze haven de goederen voor de handelsstad in en uitgeslagen. Tegenwoordig wordt de haven slechts gebruikt als recreatiehaven voor rondvaartboten en Den Bosch Maritiem. In de omgeving zijn onder andere gevestigd: Meubelstoffeerdersbedrijf Van Herwijnen, Primera, Vollenbergh kappers, Restaurant Nevel etc.

Commerciële ruimte / kantoorruimte / winkelruimte
Het betreft een kantoor-/winkelobject met een verhuurbare oppervlakte van circa 84 m² op de begane grond. Het object leent zich zowel voor een winkel als een (balie) kantoorfunctie. Op dit moment is de ruimte verdeeld in een aantal kamers maar het is eenvoudig terug te brengen naar een grote ruimte.

Kenmerken commerciële ruimte / kantoorruimte / winkelruimte
- Stucwerk plafonds
- LED-verlichting en opbouwspots
- Houten vloerdelen
- Radiatoren
- Pantry
- Toilet

Bestemming
Het bedrijfsgebouw is volgens opgave van de gemeente 's-Hertogenbosch opgenomen in het bestemmingsplan ‘Binnenstad'. Dit werd vastgesteld bij Raadsbesluit d.d. 23 april 2013.

Het perceel heeft volgens dit bestemmingsplan de bestemming ‘Gemengd’met als functieaanduiding 'detailhandel'.

Locatie
Het object ligt op loopafstand van het NS Centraal Station waardoor de bereikbaarheid met het openbaar vervoer uitstekend is. Het centrum van ’s-Hertogenbosch is goed bereikbaar met eigen vervoer. Onder het NS Centraal Station is een grote openbare parkeergarage gelegen. Tevens zijn er in de nabije omgeving ruim voldoende betaalde parkeerplaatsen gesitueerd. 

 

+ Lees volledige omschrijving
Kenmerken
TypeTe huur
Oppervlakte84
Gebouwdetails
ParkeerfaciliteitenIn de nabije omgeving zijn ruim voldoende betaalde parkeerplaatsen gesitueerd
Bereikbaarheid snelweg afritOp 1000 m tot 1500 m
Bereikbaarheid NS stationOp minder dan 500 m
Bereikbaarheid bushalteOp minder dan 500 m
Financieel
TransactiestatusVerhuurd
Type aanvaardingIn overleg
Brede Haven 6 ‘s-hertogenbosch
Brede Haven 6 ‘s-hertogenbosch
Brede Haven 6 ‘s-hertogenbosch