Emmaplein 4 A

5211 VW ’s-Hertogenbosch
Kantoorruimte | circa 110 ㎡

Verhuurd

Omschrijving

TE HUUR
Circa 110 m² kantoorruimte
Instapklare kantoorruimte

De kantoorruimte is gelegen in het gebouw 'Emmastaete', aan het Emmaplein 4 te 's-Hertogenbosch. "Emmastaete is voor vele bekend als het oude arbeidsbureau. Inmiddels biedt het kantoorgebouw onderdak aan verschillende ondernemers.

Het Emmaplein is gelegen op steenworp afstand van het Centraal Station van Den Bosch. Vanwege de ligging aan de rand van het centrum zijn de voorzieningen zeer divers te noemen. Het gebied wordt gekenmerkt door wonen in de vorm van appartementen, kantoren, horecavoorzieningen en een gezondheidscentrum. Enkele kenmerkende bedrijven in de omgeving zijn Verkadefabriek, Bikeshop Kemps en banketbakkerij Jan de Groot.

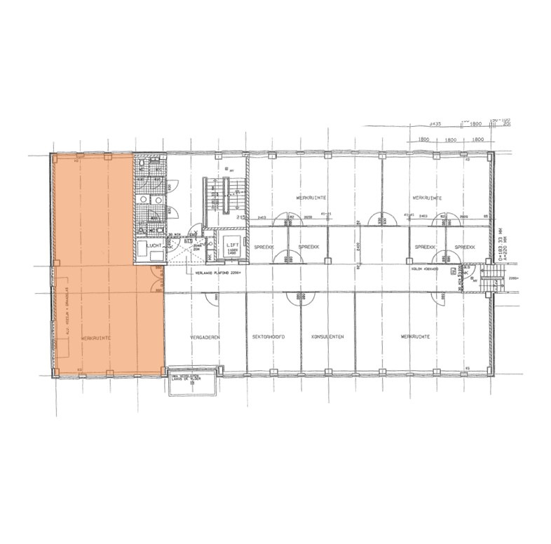
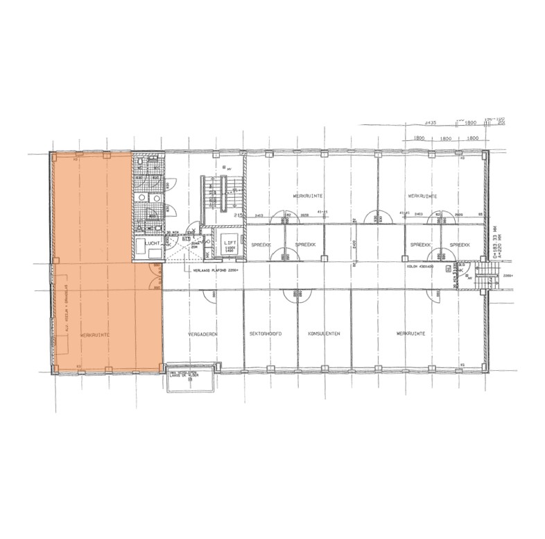
Kantoorruimte
In het gebouw 'Emmastaete' is op dit moment circa 110 m² op de 1e verdieping beschikbaar. 

Kenmerken
- Systeemplafonds met verlichtingsarmaturen
- Huidige vloerafwerking
- Huidige indeling met scheidingswanden
- Gescheiden dames- en herentoilet per bouwlaag voor gezamenlijk gebruik
- Kabelgoten ten behoeve van data, telefonie en elektrapunten
- Pantry-opstelling
- Gezamenlijke entree
- Trappenhuis en lift
- Gezamenlijk dakterras
- Lamellen

Parkeren
Via de Gemeente ’s-Hertogenbosch is er een mogelijkheid tot het huren van parkeerplaatsen op het achter gelegen parkeerterrein. Tevens biedt het parkeerterrein van de Verkadefabriek de mogelijkheid tot het huren van extra parkeerplaatsen.

Bestemming
Het bedrijfsgebouw is volgens opgave van de gemeente 's-Hertogenbosch opgenomen in het bestemmingsplan ‘' 't Zand'. Dit werd vastgesteld bij Raadsbesluit d.d. 8 februari 2006. Het perceel heeft volgens dit bestemmingsplan de bestemming ‘Kantoren.

Bereikbaarheid
Gezien de ligging op steenworp afstand van het Centraal Station van ’s-Hertogenbosch is de bereikbaarheid met het openbaar vervoer uitstekend te noemen. De snelwegen A2 en de A59 zijn binnen enkele autominuten bereikbaar.

 

+ Lees volledige omschrijving
Kenmerken
TypeTe huur
Oppervlakte110
Gebouwdetails
Bouwjaar1990
LiggingskenmerkenStationslocatie
EnergieklasseC
ParkeerfaciliteitenMogelijkheid tot huren van parkeerplaatsen op het achterliggende terrein. tevens mogelijkheden voor het huren van parkeerplaatsen op het parkeerterrein van de verkadefabriek.
Bereikbaarheid snelweg afritOp 1500 m tot 2000 m
Bereikbaarheid NS stationOp minder dan 500 m
Bereikbaarheid bushalteOp minder dan 500 m
Financieel
TransactiestatusVerhuurd
Servicekosten€ 45,00 Per vierkante meters per jaar
Type aanvaardingIn overleg
Emmaplein 4 A ‘s-hertogenbosch Emmastaete
Emmaplein 4 A ‘s-hertogenbosch Emmastaete