Erasmusstraat 3

5216 HM ’s-Hertogenbosch
Winkelruimte | circa 183 ㎡

Verkocht

Omschrijving

TE KOOP/TE HUUR
Circa 153 m² vvo winkel-/kantoor-/commerciële ruimte
Vraag onze makelaar naar de vele mogelijkheden!

Het object maakt onderdeel uit van winkelcentrum Zuiderpassage, gelegen in ‘s-Hertogenbosch-Zuid en voorziet, samen met het in de nabijheid gelegen winkelcentrum Pettelaar Poort, in de dagelijkse behoefte van de bewoners in deze wijk.

Het object kent vele gebruikersmogelijkheden dankzij de bestemming. Zowel detailhandel als kantoorruimte als horeca met categorie 2 en 3 mogen zich hier vestigen. In de directe omgeving bevinden zich winkels, kantoren en eetgelegenheden waaronder Darts & Zo, Spaendonck Sport, Yoy's for Hair, Hazet tekenbureau, Wasserij stomerij Den Bosch Zuid, Beauty & Welness Zizie, Domino's Pizza en Kraus Tattoo.

Winkel-/kantoor-/commerciële ruimte
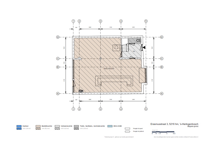
De winkel-kantoor-/commerciële ruimte heeft een totale oppervlakte van circa 153 m² vvo waarvan circa 88 m² gelegen op de begane grond, circa 24 m² op de verdieping en circa 41 m² kelderruimte.

De entree van het object is gelegen aan de binnenzijde van de passage en de bevoorrading geschiedt vanaf de Erasmusstraat. De winkelruimte is een appartementsrecht en maakt onderdeel uit van een bestaande Vereniging van Eigenaars.

Kenmerken winkel-/kantoor-/commerciële ruimte
- Deels vloerbedekking, deels pvc
- Deels schrootjes plafond met inbouwspots, deels gestuct plafond met inbouwspots
- Verwarming middels radiatoren
- Alarminstallatie
- Airco
- Etalage van circa 5,00 meter
- Toilet
- Brandblusvoorzieningen

Parkeren
Er zijn voldoende parkeerplaatsen rondom het winkelcentrum. Het 1e en 2e uur is het parkeren gratis, vanaf het 3e uur is het betaald parkeren. Het is noodzakelijk het kenteken aan te melden via de parkeerautomaat of via de parkeerapp.

Bestemming
Het bedrijfsgebouw is volgens opgave van de gemeente 's-Hertogenbosch opgenomen in het bestemmingsplan ‘Zuid'. Dit werd vastgesteld bij Raadsbesluit d.d. 30 augustus 2011.
 
Het perceel heeft volgens dit bestemmingsplan de bestemming ‘Centrum-3’.

Maximum bouwhoogte (m): 7

Locatie
Via de Zuiderparkweg is de Zuiderpassage prima ontsloten en bereikbaar.
Het object is op enkele autominuten gelegen nabij de op- en afritten van de A2, met een directe aansluiting op de A59.
Verder bevindt zich in de directe omgeving een bushalte waardoor de bereikbaarheid met openbaar vervoer goed te noemen is.
 

+ Lees volledige omschrijving
Kenmerken
TypeTe koop
Oppervlakte183
Gebouwdetails
Bouwjaar1960
ParkeerfaciliteitenEr zijn voldoende parkeerplaatsen rondom het winkelcentrum. het 1e en 2e uur is het parkeren gratis, vanaf het 3e uur is het betaald parkeren. het is noodzakelijk het kenteken aan te melden via de parkeerautomaat of via de parkeerapp.
Bereikbaarheid snelweg afritOp 1500 m tot 2000 m
Bereikbaarheid NS stationOp 5000 m of meer
Bereikbaarheid bushalteOp minder dan 500 m
Financieel
TransactiestatusVerkocht
Type aanvaardingIn overleg
Erasmusstraat 3 ‘s-hertogenbosch
Erasmusstraat 3 ‘s-hertogenbosch
Erasmusstraat 3 ‘s-hertogenbosch
Erasmusstraat 3 ‘s-hertogenbosch