Guldengaarde 6
5234 GG
’s-Hertogenbosch
Kantoorruimte | circa 190 ㎡
Verhuurd
Omschrijving
VERHUURD
Circa 190 m² kantoorruimte
Het object is gelegen op bedrijventerrein Maaspoort in Den Bosch. De directe omgeving wordt enerzijds gekenmerkt door hoogwaardige bedrijvigheid zoals onder meer Harting Nederland, Sockshouse, Destil, Wemo Nederland B.V. en anderzijds door de ligging aan de rand van het woongebied Maaspoort.
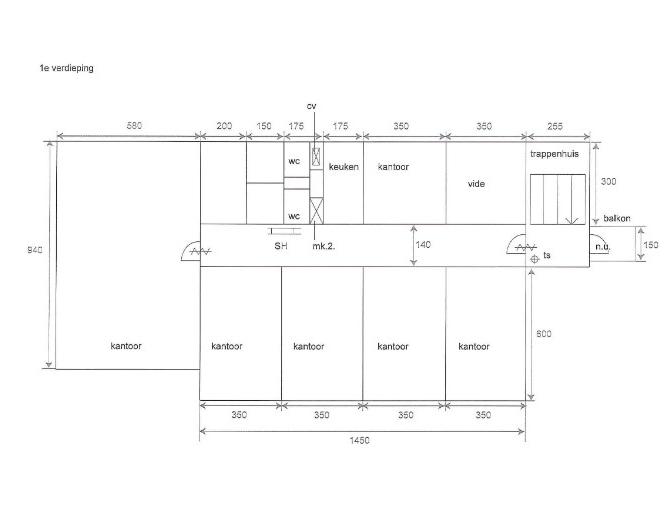
Kantoorruimte
Het betreft circa 190 m² representatieve kantoorruimte gelegen op de 1e verdieping.
| Kenmerken | |
|---|---|
| Type | Te huur |
| Oppervlakte | 190 ㎡ |
| Gebouwdetails | |
|---|---|
| Bouwjaar | 1998 |
| Energieklasse | A + |
| Parkeerfaciliteiten | Er is voldoende parkeergelegenheid op eigen terrein aanwezig |
| Bereikbaarheid snelweg afrit | Op 1000 m tot 1500 m |
| Bereikbaarheid NS station | Op 4000 m tot 5000 m |
| Financieel | |
|---|---|
| Transactiestatus | Verhuurd |
| Servicekosten | € 39,00 Per vierkante meters per jaar |
| Type aanvaarding | In overleg |
Andere panden met vergelijkbare kenmerken
Vraag de brochure aan voor dit object
Na het invullen van het formulier zal de download van de brochure direct starten.
Plan een bezichtiging voor dit object
Na het invullen van het formulier nemen wij zo snel mogelijk contact op.