Rietveldenweg 0 ong

5222 AR ’s-Hertogenbosch
Bedrijfsruimte | circa 160 ㎡

Prijs op aanvraag

Omschrijving

TE KOOP
33 nieuwbouw bedrijfsunits vanaf € 277.900,00 VON excl. BTW

Businesspark De Rietvelden
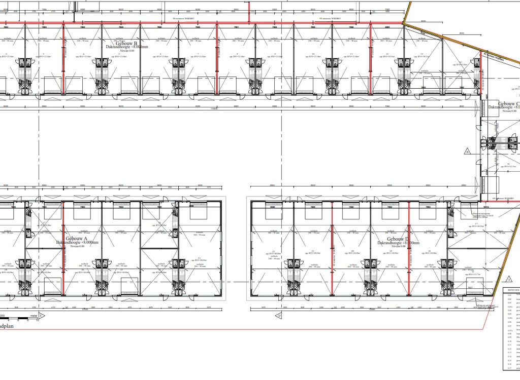
Op Businesspark De Rietvelden wordt een modern bedrijfsverzamelgebouw ontwikkeld, bestaande uit 33 casco bedrijfsunits. De bruto vloeroppervlaktes per bedrijfsunit variëren van circa 160 m² tot circa 430 m², verdeeld over de begane grond en de verdieping. Kwaliteit en duurzaamheid staan centraal binnen deze ontwikkeling. Zowel de moderne architectuur, een goed ontwerp als het gebruik van duurzame materialen dragen bij aan de realisatie van een toekomstbestendig gebouw.

Een omgeving die ondernemers inspireert en stimuleert!

Locatie
Businesspark De Rietvelden is gelegen op het bedrijventerrein De Rietvelden. Bedrijventerrein De Rietvelden is gelegen ten noordwesten van het centrum van Den Bosch en is het grootste bedrijventerrein van Den Bosch. Het bedrijventerrein is grotendeels aangelegd in de vijftiger en zestiger jaren en huisvest voornamelijk mkb-bedrijven alsmede grootschalige transport- en distributiebedrijven, zoals onder meer Heineken, Brabanthallen, Sigma, Sligro en Makro.

Units
Naar wens van de koper kunnen units worden samengevoegd, zodat ook de afname van een groter aantal vierkante meters optioneel wordt. Toegang tot de panden wordt verkregen door middel van een loopdeur en een elektrische bedienbare overheaddeur (nog aan te sluiten). De afmetingen van de units vindt u terug op de plattegronden en tekeningen.

Beschikbaarheid
Voor de actuele beschikbaarheid kunt u het beste telefonisch contact met ons opnemen.

Aanvang en oplevering
Zodra zowel de omgevingsvergunning onherroepelijk is en 50% van de units onvoorwaardelijk is verkocht, of zoveel minder ter beoordeling aan de ontwikkelaar, wordt met de bouw van dit project gestart. De bouwtijd bedraagt circa 10-11 maanden (200 werkbare werkdagen na het gereedkomen van de betonnen begane grondvloer). Verwachte oplevering is Q4 2025.

Afwerking
Omdat geen enkele koper hetzelfde is, geeft de aannemer u de mogelijkheid om uw nieuwe huisvesting compleet naar eigen inzicht in te delen en in te richten. De units zijn degelijk gebouwd en afgewerkt met gebruikmaking van moderne, duurzame bouw- en isolatiematerialen. Zie hiervoor ook de technische omschrijving.

Bestemming
Volgens het thans geldende bestemmingsplan "Bedrijventerrein de Rietvelden, De Vutter, Het Ertveld", onherroepelijk per 3  juni 2013, is deze locatie bestemd voor bedrijvigheid en groothandel in de categorieën 1 tot en met 3.2 van de bij deze regels als bijlage behorende Staat van bedrijfsactiviteiten (zie www.ruimtelijkeplannen.nl voor een nadere toelichting). In het reglement van de Vereniging van Eigenaars zal het gebruik van de bedrijfsunits voor automotive relateerde doeleinden zoals verkoop-/reparatie-/autopoets activiteiten worden uitgesloten om parkeerdruk te voorkomen.

Pluspunten van units
• Gevlinderde betonvloer op de begane grond en op de verdieping;
• De vloerbelasting van de betonnen begane grondvloer bedraagt 2.000 kg/m²;
• Vloerbelasting van de betonnen verdiepingsvloer bedraagt 350 kg/m²;
• Alle overheaddeuren hebben een hoogte en breedte van 3,5meter;
• Alle units zijn standaard voorzien van toilet met fonteintje;
• Uitstekende vloer-, gevel- en dakisolatie;
• Gebouwhoogte van circa 8 meter;
• Betonnen trap naar de verdieping;
• Voldoende parkeergelegenheid en goede bereikbaarheid.;
• Meterkast voorzien van stroomaansluiting, wateraansluiting en telecomaansluiting, de aansluitkosten van de nutsvoorzieningen worden separaat aan koper doorbelast;

Bereikbaarheid
De bereikbaarheid per auto is goed. Vanaf de A2 (Utrecht-Eindhoven) is het object binnen enkele minuten bereikbaar. Via de A59 zijn Nijmegen, Breda en Tilburg goed bereikbaar. De bereikbaarheid per auto is goed. Vanaf de A2 (Utrecht-Eindhoven) is het object binnen enkele minuten bereikbaar. Via de A59 zijn Nijmegen, Breda en Tilburg goed bereikbaar.

 

+ Lees volledige omschrijving
Kenmerken
TypeTe koop
Oppervlakte160
Gebouwdetails
Bouwjaar2024
ParkeerfaciliteitenVoldoende parkeergelegenheid op eigen terrein
Bereikbaarheid snelweg afritOp 1500 m tot 2000 m
Bereikbaarheid NS stationOp 1500 m tot 2000 m
Bereikbaarheid bushalteOp 1000 m tot 1500 m
Financieel
TransactiestatusBeschikbaar
Type aanvaardingIn overleg
Rietveldenweg 0 ong ‘s-hertogenbosch
Rietveldenweg 0 ong ‘s-hertogenbosch
Rietveldenweg 0 ong ‘s-hertogenbosch
Rietveldenweg 0 ong ‘s-hertogenbosch