Rietveldenweg 11 A
5222 AP
’s-Hertogenbosch
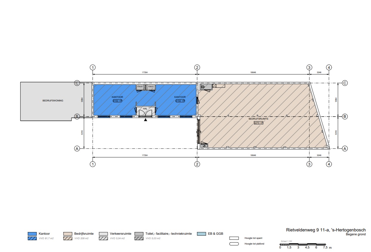
Bedrijfsruimte | circa 208 ㎡
Kantoorruimte | circa 82 ㎡
€ 40.000,00 per jaarOmschrijving
TE HUUR
Circa 208 m² bedrijfsruimte
Circa 82 m² kantoorruimte
Stel u voor: Een bedrijfspand dat de perfecte balans biedt tussen ruimte, functionaliteit en modern comfort. Welkom bij Rietveldenweg 11a, gelegen op bedrijventerrein De Rietvelden te 's-Hertogenbosch.
Dit pand omvat een ruime bedrijfsruimte van circa 208 m² en een eigentijdse kantoorruimte van circa 82 m².
| Kenmerken | |
|---|---|
| Type | Te huur |
| Oppervlakte | 208 ㎡ |
| Gebouwdetails | |
|---|---|
| Bouwjaar | 1957 |
| Energieklasse | F |
| Parkeerfaciliteiten | Er is parkeergelegenheid op eigen terrein en langs openbare weg |
| Bereikbaarheid snelweg afrit | Op 1500 m tot 2000 m |
| Bereikbaarheid NS station | Op 1500 m tot 2000 m |
| Financieel | |
|---|---|
| Transactiestatus | Beschikbaar |
| Type aanvaarding | In overleg |
Andere panden met vergelijkbare kenmerken
Vraag de brochure aan voor dit object
Na het invullen van het formulier zal de download van de brochure direct starten.
Plan een bezichtiging voor dit object
Na het invullen van het formulier nemen wij zo snel mogelijk contact op.