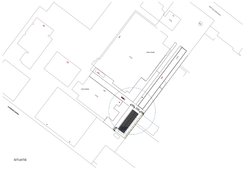
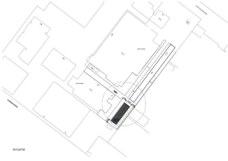
Rietveldenweg 32
5222 AR
’s-Hertogenbosch
Bedrijfsruimte | circa 792 ㎡
Prijs op aanvraag
Omschrijving
TE HUUR
9 nieuwbouw bedrijfsunits van elk 88 m²
Een gloednieuw project van 9 bedrijfsunits gelegen aan de Rietveldenweg 32, op bedrijventerrein De Rietvelden te 's-Hertogenbosch. Het project bevindt zich achter op het perceel aan de Rietveldenweg 32, op het grootste bedrijventerrein van Den Bosch, De Rietvelden. Dit terrein huisvest voornamelijk mkb-bedrijven en bekende namen zoals Heineken, Brabanthallen, Sigma, Sligro en Makro.
Project
Het nieuwbouwproject bestaat uit 9 bedrijfsunits met elk een oppervlakte van 88 m². Elke unit omvat 53 m² bedrijfsruimte op de begane grond en circa 35 m² entresolvloer en is voorzien een elektrische overheaddeur. De entresolvloer ligt op een hoogte van 3.40 meter.
| Kenmerken | |
|---|---|
| Type | Te huur |
| Oppervlakte | 792 ㎡ |
| Gebouwdetails | |
|---|---|
| Bouwjaar | 2024 |
| Bereikbaarheid snelweg afrit | Op 1500 m tot 2000 m |
| Bereikbaarheid NS station | Op 1500 m tot 2000 m |
| Bereikbaarheid bushalte | Op 1000 m tot 1500 m |
| Financieel | |
|---|---|
| Transactiestatus | Beschikbaar |
| Type aanvaarding | In overleg |
Andere panden met vergelijkbare kenmerken
Vraag de brochure aan voor dit object
Na het invullen van het formulier zal de download van de brochure direct starten.
Plan een bezichtiging voor dit object
Na het invullen van het formulier nemen wij zo snel mogelijk contact op.