Rietveldenweg 32

5222 AR ’s-Hertogenbosch
Bedrijfsruimte | circa 616 ㎡

Prijs op aanvraag

Omschrijving

TE HUUR
9 nieuwbouw bedrijfsunits van elk 88 m²

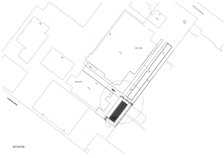
Een gloednieuw project van 9 bedrijfsunits gelegen aan de Rietveldenweg 32, op bedrijventerrein De Rietvelden te 's-Hertogenbosch. Het project bevindt zich achter op het perceel aan de Rietveldenweg 32, op het grootste bedrijventerrein van Den Bosch, De Rietvelden. Dit terrein huisvest voornamelijk mkb-bedrijven en bekende namen zoals Heineken, Brabanthallen, Sigma, Sligro en Makro.

Project
Het nieuwbouwproject bestaat uit 9 bedrijfsunits met elk een oppervlakte van 88 m². Elke unit omvat 53 m² bedrijfsruimte op de begane grond en circa 35 m² entresolvloer en is voorzien een elektrische overheaddeur. De entresolvloer ligt op een hoogte van 3.40 meter.

Opleverniveau
- Betonvloer op de begane grond met een minimaal draagvermogen van 1.000 kg/m²
- Verdiepingsvloer (hout), draagvermogen minimaal 250 kg/m²
- Tussenmeter voor verbruik water en elektra
- Elektrisch bedienbare overheaddeur
- 1 krachtstroomaansluiting en 1 normaal stopcontact per unit
- Ledverlichting
- Afgedopte aansluiting tbv riolering

Bestemming
Het bedrijfsgebouw is volgens opgave van de gemeente 's-Hertogenbosch opgenomen in het bestemmingsplan ‘Bedrijventerrein De Rietvelden, De Vutter, Het Ertveld'. Dit werd vastgesteld bij Raadsbesluit d.d. 3 juni 2013.
Het perceel heeft volgens dit bestemmingsplan de bestemming ‘Bedrijventerrein’ met als functieaanduiding 'bedrijf tot en met categorie 3.2 en met specifieke vorm van bedrijf - b7'.

Parkeren
Er is voldoende gemeenschappelijke parkeergelegenheid op eigen terrein.

Bereikbaarheid
De bereikbaarheid per auto is goed. Vanaf de A2 (Utrecht-Eindhoven) is het object binnen enkele minuten bereikbaar. Via de A59 zijn Nijmegen, Breda en Tilburg goed bereikbaar. De bereikbaarheid per auto is goed. Vanaf de A2 (Utrecht-Eindhoven) is het object binnen enkele minuten bereikbaar. Via de A59 zijn Nijmegen, Breda en Tilburg goed bereikbaar.

 

+ Lees volledige omschrijving
Kenmerken
TypeTe huur
Oppervlakte616
Gebouwdetails
Bouwjaar2024
Bereikbaarheid snelweg afritOp 1500 m tot 2000 m
Bereikbaarheid NS stationOp 1500 m tot 2000 m
Bereikbaarheid bushalteOp 1000 m tot 1500 m
Financieel
TransactiestatusVerhuurd
Servicekosten€ 50,00 Per maand
Type aanvaardingIn overleg
Rietveldenweg 32 ‘s-hertogenbosch
Rietveldenweg 32 ‘s-hertogenbosch
Rietveldenweg 32 ‘s-hertogenbosch
Rietveldenweg 32 ‘s-hertogenbosch
Rietveldenweg 32 ‘s-hertogenbosch
Rietveldenweg 32 ‘s-hertogenbosch
Rietveldenweg 32 ‘s-hertogenbosch