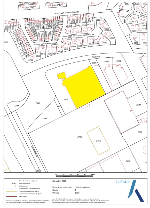
Sluisweg 200
5237 MZ
’s-Hertogenbosch
Bedrijfsruimte | circa 1.450 ㎡
Verhuurd
Omschrijving
VERHUURD
Circa 1.450 m² bedrijfsruimte
Het object is gelegen aan de Sluisweg 200 op bedrijventerrein De Maaspoort te ‘s-Hertogenbosch. Bedrijventerrein Maaspoort is een terrein dat eind jaren 80, begin jaren 90 tot ontwikkeling is gekomen en een buffer vormt tussen de spoorlijn Den Bosch-Utrecht en de woonwijk Maaspoort.
In de directe omgeving van het object bevinden zich onder andere: WEMO Nederland B.V., Sunsit B.V., Korver Holland Magazijn en Vriesoord. Direct aan de andere zijde van de spoorlijn is thans het bedrijventerrein Treurenburg in ontwikkeling.
| Kenmerken | |
|---|---|
| Type | Te huur |
| Oppervlakte | 1.450 ㎡ |
| Gebouwdetails | |
|---|---|
| Bouwjaar | 1991 |
| Parkeerfaciliteiten | Het terrein is voorzien van klinkerbestrating en er is voldoende parkeergelegenheid rondom het object aanwezig. |
| Bereikbaarheid snelweg afrit | Op 2000 m tot 3000 m |
| Bereikbaarheid NS station | Op 4000 m tot 5000 m |
| Bereikbaarheid bushalte | Op minder dan 500 m |
| Financieel | |
|---|---|
| Transactiestatus | Verhuurd |
| Type aanvaarding | In overleg |
Andere panden met vergelijkbare kenmerken
Vraag de brochure aan voor dit object
Na het invullen van het formulier zal de download van de brochure direct starten.
Plan een bezichtiging voor dit object
Na het invullen van het formulier nemen wij zo snel mogelijk contact op.