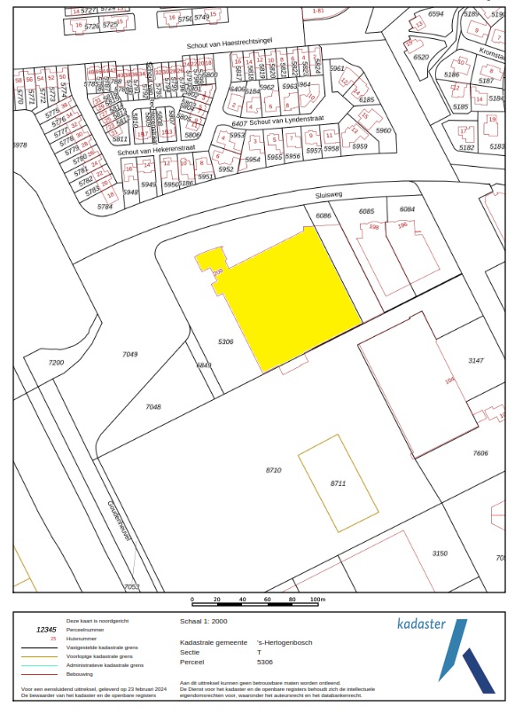
Sluisweg 200

5237 MZ ’s-Hertogenbosch
Bedrijfsruimte | circa 2.100 ㎡

Verhuurd

Omschrijving

TE HUUR
Circa 2.100 m² bedrijfsruimte

Het object is gelegen aan de Sluisweg 200 op bedrijventerrein De Maaspoort te ‘s-Hertogenbosch. Bedrijventerrein Maaspoort is een terrein dat eind jaren 80, begin jaren 90 tot ontwikkeling is gekomen en een buffer vormt tussen de spoorlijn Den Bosch-Utrecht en de woonwijk Maaspoort.

In de directe omgeving van het object bevinden zich onder andere: Budbee, Distrifresh, Korver Holland Magazijn, FSS Security etc.
Direct aan de andere zijde van de spoorlijn is thans het bedrijventerrein Treurenburg in ontwikkeling.

Bedrijfsruimte
Het betreft circa 2.100 m² bedrijfsruimte gelegen op de begane grond.

Kenmerken
- Betonvloer
- Overheaddeur
- TL-verlichting
- 6 meter vrije hoogte
- Brandblusvoorzieningen

Parkeren
Het terrein is voorzien van klinkerbestrating en er is voldoende parkeergelegenheid rondom het object aanwezig.

Bestemming
Het bedrijfsgebouw is volgens opgave van de gemeente 's-Hertogenbosch opgenomen in het bestemmingsplan “Bedrijventerreinen (treurenburg, Maaspoort, Hambakenwetering, Brabantpoort, De Brand, De Herven”. Dit werd onherroepelijk op d.d. 25-3-2013.
 
Het perceel heeft volgens dit bestemmingsplan de enkelbestemming ‘Bedrijventerrein ’ en dubbelbestemming 'Waarde - Archeologie -3', met functieaanduiding ‘bedrijf tot en met categorie 3.1’ met als specifieke functieaanduiding specifieke vorm van detailhandel - abc.

Maximum bebouwingspercentage terrein (%): 70
Maximum bouwhoogte (m): 10

Locatie
De Sluisweg is met het eigen vervoer goed te bereiken. Oorspronkelijk was het object gelegen aan een nagenoeg doodlopende weg. Vanwege dat recentelijk de Goudenheuvel is doorgetrokken en aansluiting heeft gekregen op de Sluisweg is een volledige ontsluiting ontstaan van dit gedeelte van het bedrijventerrein. De op- en afritten van rijksweg A59 (Zevenbergen - Waalwijk - ’s-Hertogenbosch - Oss) en de op- en afritten van de Rijksweg A2 (Amsterdam-Maastricht) zijn op relatief korte afstand van het object gelegen.

Op korte afstand van het object is een bushalte gelegen. Vanuit hier is er een direct busverbinding met het centraal station van ’s-Hertogenbosch. In de toekomst is op steenworp afstand van het object een NS-station geprojecteerd.
 

+ Lees volledige omschrijving
Kenmerken
TypeTe huur
Oppervlakte2.100
Gebouwdetails
Bouwjaar1991
ParkeerfaciliteitenHet terrein is voorzien van klinkerbestrating en er is voldoende parkeergelegenheid rondom het object aanwezig.
Bereikbaarheid snelweg afritOp 2000 m tot 3000 m
Bereikbaarheid NS stationOp 4000 m tot 5000 m
Bereikbaarheid bushalteOp minder dan 500 m
Financieel
TransactiestatusVerhuurd
Type aanvaardingIn overleg
Sluisweg 200 ‘s-hertogenbosch