Havenweg 1

5145 NJ Waalwijk
Bedrijfsruimte | circa ㎡
Kantoorruimte | circa 450 ㎡

Prijs op aanvraag

Omschrijving

TE HUUR
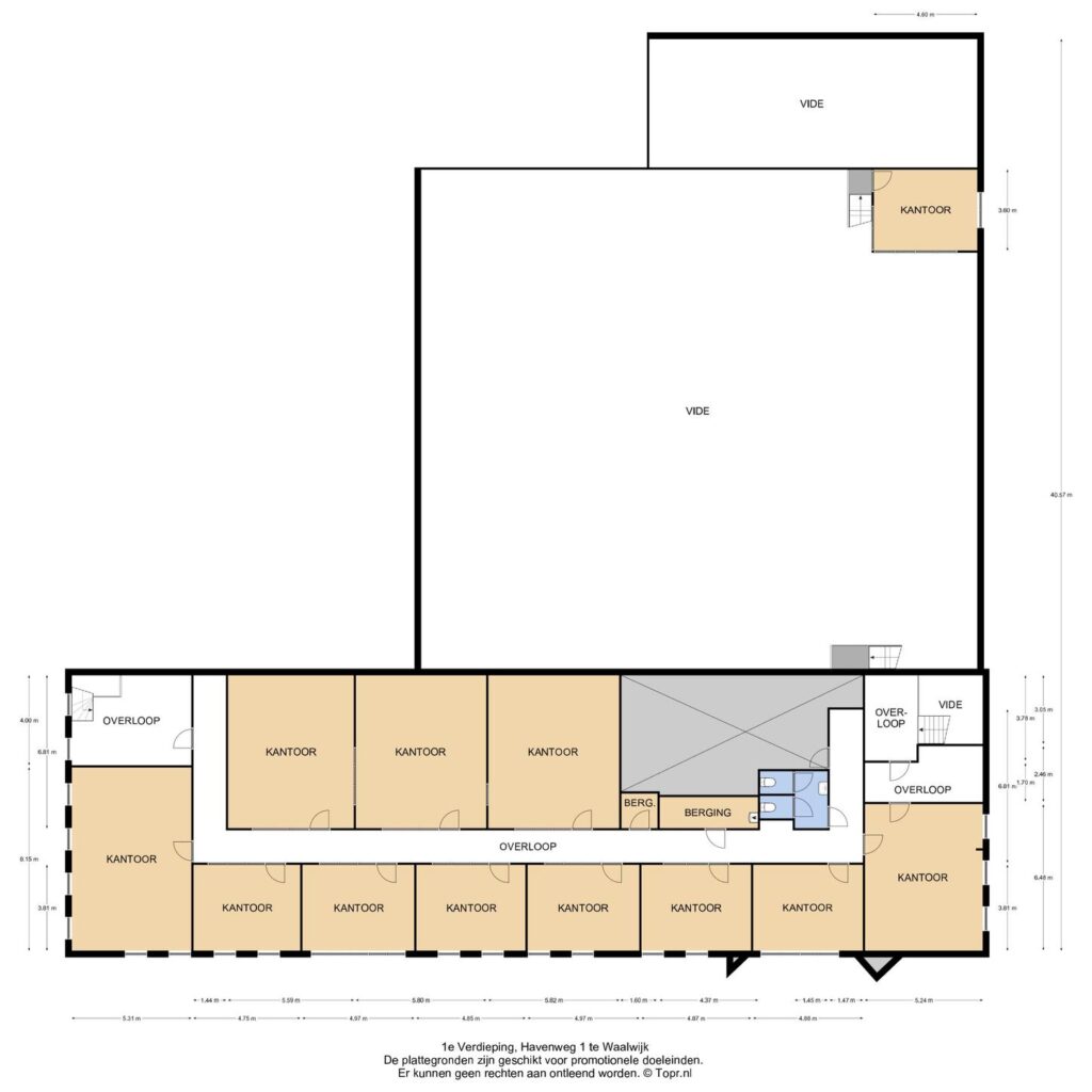
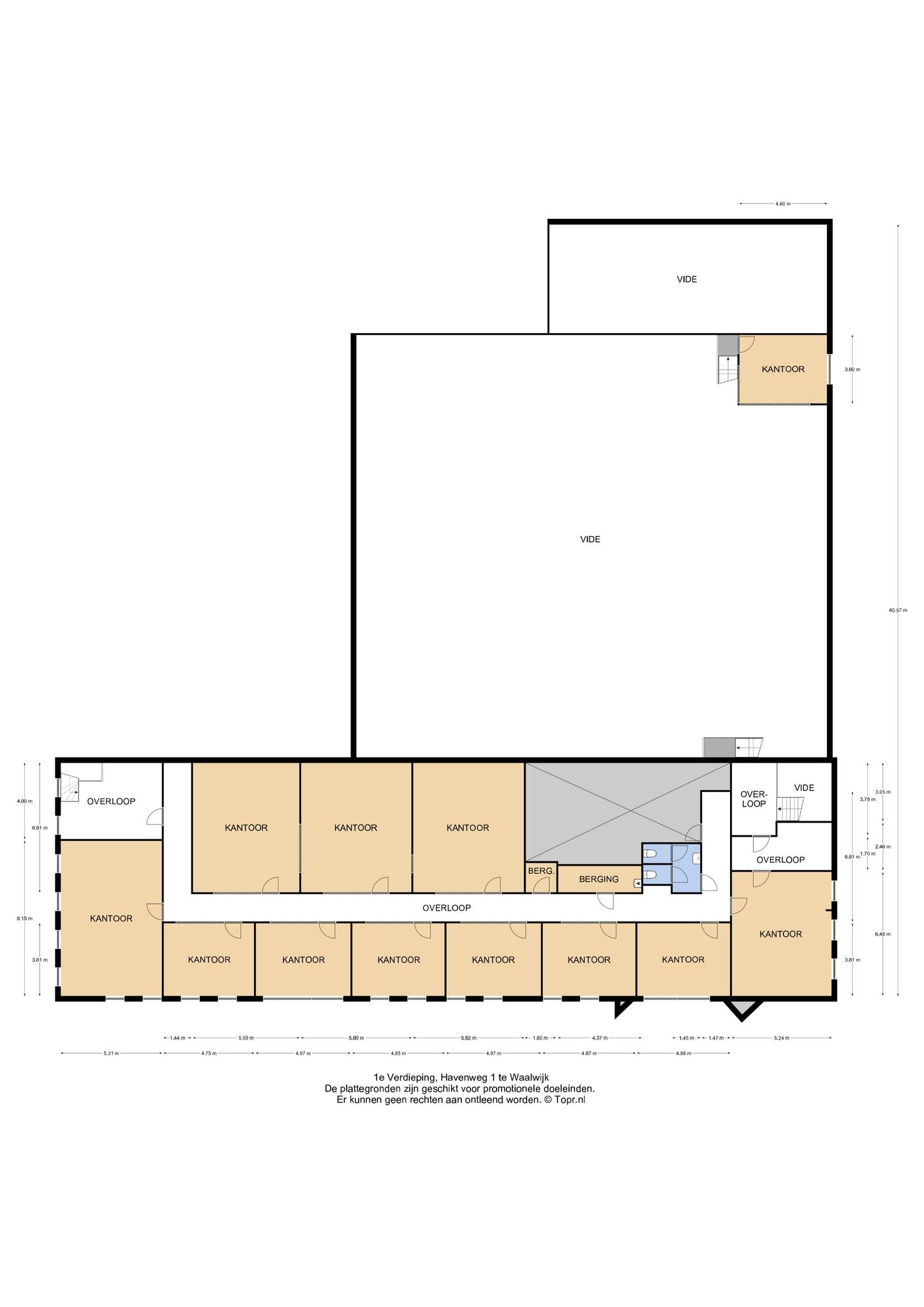
Circa 450 m² kantoorruimte

Het object aan de Havenweg 1 is gelegen op bedrijventerrein “Haven” in Waalwijk. Naast een uitstekende ontsluiting via het wegennet beschikt de haven van Waalwijk door een verbinding met de Bergsche Maas over waterverbindingen met bijvoorbeeld Rotterdam en Duitsland. Dit bedrijventerrein is inmiddels uitgegroeid tot één van de grootste bedrijventerreinen in de regio, zowel in oppervlak (279 ha) als werkgelegenheid. Het terrein wordt momenteel aan de oostzijde uitgebreid met “Haven acht”.

In de directe omgeving bevinden zich onder andere Stahl Holdings B.V., Univacco, Delft Profilelen, Montagemarkt Waalwijk, Boels Verhuur Waalwijk BV, Van Mossel Automotive Group.

Kantoorruimte
Het betreft circa 450 m² kantoorruimte op de eerste verdieping.

Kenmerken kantoorruimte
- Entree voorzien van een balie en tegelvloer
- Inbouwspots
- Verwarming middels radiatoren
- Systeemplafond met LED-verlichting in kantoren
- Warmtewerende beglazing
- Airco
- Vloerbedekking
- Brandblusvoorzieningen
- Kabelgoten voorzien van elektra en data
- Alarminstallatie
- Camerasysteem
- Luxaflex

Parkeren
Op eigen afsluitbare terrein is voldoende parkeergelegenheid aanwezig.

Parkeren
Er is voldoende parkeergelegenheid aanwezig op het eigen afgesloten parkeerterrein.

Bestemming
Het bedrijfsgebouw is volgens opgave van de gemeente Waalwijk opgenomen in het bestemmingsplan ‘Bedrijventerrein Haven'. Dit werd vastgesteld bij Raadsbesluit d.d. 20 juni 2013.
 
Het perceel heeft volgens dit bestemmingsplan de bestemming ‘Bedrijventerrein’ met als functieaanduiding 'specifieke vorm van bedrijfsterrein - milieucategorie 2 tot en met 3.2'.
 
Maximum bouwhoogte (m): 16

Locatie
Het bedrijfsobject is gelegen op bedrijventerrein Haven te Waalwijk. Vanwege de centrale ligging is Waalwijk goed ontsloten door de Rijksweg A59 en de Provinciale weg N261 (Midden-Brabantweg). De Rijkswegen A2, A27 en A58 zijn op relatief korte afstand gelegen. Het centrum van Waalwijk is eveneens op korte afstand gelegen.

Tevens beschikt Waalwijk over een binnenhaven, welke in verbinding staat met de Bergsche Maas via waar de havens van Rotterdam gemakkelijk te bereiken zijn.
 

+ Lees volledige omschrijving
Kenmerken
TypeTe huur
Oppervlakte450
Gebouwdetails
Bouwjaar1991
LiggingskenmerkenIn havengebied
EnergieklasseA
ParkeerfaciliteitenOp eigen afsluitbare terrein is voldoende parkeergelegenheid aanwezig.
Bereikbaarheid snelweg afritOp minder dan 500 m
Bereikbaarheid NS stationOp 5000 m of meer
Bereikbaarheid bushalteOp minder dan 500 m
Financieel
TransactiestatusVerhuurd
Type aanvaardingIn overleg
Havenweg 1 Waalwijk
Havenweg 1 Waalwijk