Schotsbossenstraat 0 ong

4705 AG Roosendaal
Bedrijfsruimte | circa 106 ㎡

Prijs op aanvraag

Omschrijving

TE KOOP
32 nieuwbouw bedrijfsunits vanaf € 154.000,00 VON excl. BTW

Businesspark Roosendaal
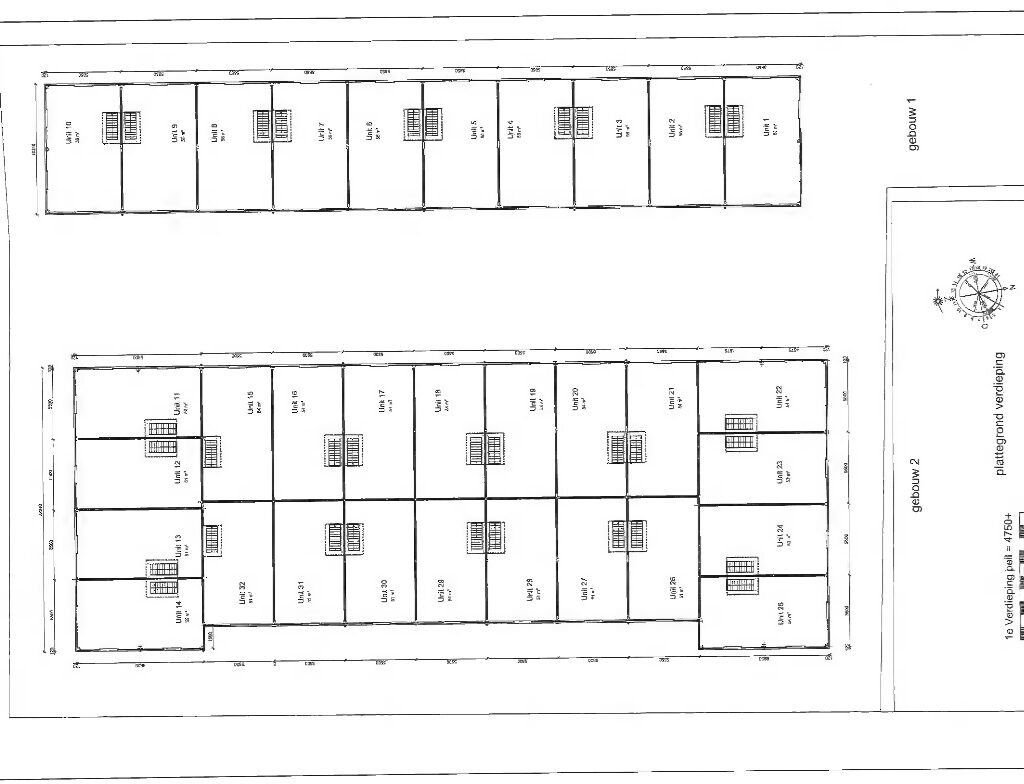
Op het perceel aan de Schotsbossenstraat (thans ongenummerd), op bedrijventerrein Majoppeveld-Noord te Roosendaal wordt een modern bedrijfsverzamelgebouw Businesspark Roosendaal ontwikkeld, bestaande uit 32 casco bedrijfsunits. De bruto vloeroppervlaktes per bedrijfsunit variëren van circa 106 m² tot circa 119 m², verdeeld over de begane grond en de verdieping. Kwaliteit en duurzaamheid staan centraal binnen deze ontwikkeling. Zowel de moderne architectuur, een goed ontwerp als het gebruik van duurzame materialen dragen bij aan de realisatie van een toekomstbestendig gebouw.

Locatie
Businesspark Roosendaal is gelegen op bedrijventerrein Majoppeveld-Noord te Roosendaal. Dit bedrijventerrein staat bekend om haar uitstekende bereikbaarheid. De op- en afritten van de A58 (Bergen op Zoom – Eindhoven) bevinden zich namelijk op korte afstand. Via de A58 zijn onder andere de Rijkswegen A4, A17 en de A16 zeer snel te bereiken.

Units
Naar wens van de koper kunnen units worden samengevoegd, zodat ook de afname van een groter aantal vierkante meters optioneel wordt. Toegang tot de panden wordt verkregen door middel van een loopdeur en een elektrische bedienbare overheaddeur (nog aan te sluiten). De afmetingen van de units vindt u terug op de plattegronden en tekeningen.

Beschikbaarheid
Voor de actuele beschikbaarheid kunt u het beste telefonisch contact met ons opnemen.

Aanvang en oplevering
Zodra zowel de omgevingsvergunning onherroepelijk is en 65% van de units onvoorwaardelijk is verkocht, of zoveel minder ter beoordeling aan de ontwikkelaar, wordt met de bouw van dit project gestart. Verwachte oplevering is Q1 2026.

Afwerking
Omdat geen enkele koper hetzelfde is, geeft de aannemer u de mogelijkheid om uw nieuwe huisvesting compleet naar eigen inzicht in te delen en in te richten. De units zijn degelijk gebouwd en afgewerkt met gebruikmaking van moderne, duurzame bouw- en isolatiematerialen. Zie hiervoor ook de technische omschrijving.

Bestemming/Gebruik
Het perceel valt volgens de gemeente Roosendaal onder het bestemmingsplan 'Majoppeveld'. Dit werd vastgesteld bij Raadsbesluit d.d. 27 februari 2018. Bestemd voor bedrijfsdoeleinden en opslag activiteiten voor zover deze voorkomen tot en met milieu categorie 3.2 zoals opgenomen in 'Staat van Bedrijfsactiviteiten op bedrijventerreinen'.

Pluspunten van units
• Betonvloer op de begane grond en op de verdieping;
• De vloerbelasting van de betonnen begane grondvloer bedraagt 1.000 kg/m²;
• Vloerbelasting van de betonnen verdiepingsvloer bedraagt 350 kg/m²;
• Alle handbediende overheaddeuren (meerprijs elektrisch) hebben een hoogte van 4 meter en breedte van 3 meter;
• Alle units zijn standaard voorzien van toilet met fonteintje;
• Uitstekende vloer-, gevel- en dakisolatie;
• Gebouwhoogte van circa 8 meter;
• Vuren houten trap naar de verdieping;
• Voldoende parkeergelegenheid en goede bereikbaarheid;
• Meterkast voorzien van stroomaansluiting, wateraansluiting en glasvezelaansluiting, de aansluitingen van de nutsvoorzieningen en de glasvezel dienen door koper zelf te worden aangevraagd en gefinancierd.

Parkeren
Voldoende parkeergelegenheid op eigen terrein.

Bereikbaarheid
De bereikbaarheid per auto is goed. De op- en afritten van de A58 (Bergen op Zoom-Eindhoven) bevinden zich op korte afstand. Door de ligging langs de A17 en A58 en tussen de havens Rotterdam, Antwerpen en Terneuzen/Vlissingen profiteert Roosendaal van de transport- & logistieksector.

 

+ Lees volledige omschrijving
Kenmerken
TypeTe koop
Oppervlakte106
Gebouwdetails
Bouwjaar2025
ParkeerfaciliteitenVoldoende parkeergelegenheid op eigen terrein
Bereikbaarheid snelweg afritOp 2000 m tot 3000 m
Bereikbaarheid NS stationOp 2000 m tot 3000 m
Bereikbaarheid bushalteOp minder dan 500 m
Financieel
TransactiestatusIngetrokken
Type aanvaardingIn overleg
Schotsbossenstraat 0 ong Roosendaal
Schotsbossenstraat 0 ong Roosendaal
Schotsbossenstraat 0 ong Roosendaal
Schotsbossenstraat 0 ong Roosendaal